COURSE
MATERIAL INVESTIGATIONS
CONCRETE IN SWITZERLAND
University of Basel, Urban Studies, MA Critical Urbanisms, Fall 2023
RAW CONCRETE
ANTONIUSKIRCHE

ABOVE THE TREES
BASEL, SWITZERLAND
St. Anton Catholic Church was constructed between 1925 and 1927 and was designed by Karl Moser (1860–1936), a professor of architecture at the University of Zurich. The massive structure is composed of reinforced concrete, with walls of glass. A cross tops the tower, which is also constructed of glass and concrete. Glass, steel, and concrete form the exterior walls. The arched reinforced concrete ceiling is supported by square concrete pillars, evenly spaced along the nave at the center of the church.

PURE CONCRETE
A FIRM SUBSTANCE
Located in the St. Johann district, the church is unrendered both inside and out, showcasing raw, exposed concrete. The exterior of the church is composed of three main parts: the portal, the longitudinal building, and the bell tower.
For centuries, churches took the form of ornate temples, embellished with sculptures, cornices, tympanums, mosaics, and stained glass — each a testament to the church’s devotion to a higher power. Through the use of reinforced concrete, a raw material believed by many architects to have evocative properties, a sense of sanctity is created without the need for excessive ornamentation. The use of simple volumes and a single material, adapted to the site, brings together a range of desires. Concrete, both as a structural element and as a basic finishing material, permeates the entire church. It represents a firm substance that grounds the building, anchoring it firmly to the earth, which contrasts with more abstract concepts. Concrete reveals its solidity as a metaphor for religious values that are not easily changed in an era of unpredictability. Furthermore, the cross, as a religious symbol, substitutes for the traditional bell tower and is integrated with the building's physical structure through the empty space at the top of the staircase. This minimized symbol subtly implies the internal tension within the space.

EVOKING EMPTINESS
CONCRETE, PHYSICAL AS WELL AS SPIRITUAL MATERIAL TRANSITION
The first thing encountered upon entering the building is the empty concrete yard on the ground floor. This flexible space serves as a venue for community interaction while also accommodating various religious programs. As visitors become accustomed to the darkness while walking past this empty yard and climbing the three stories of enclosed stairs, they are eventually confronted with a space full of light. This interior space features a cantilevered structure that extends 6.9 meters, and people must pass through this hall before entering the chapel. The cantilevered space serves as both a physical and spiritual transition, connecting daily life with religion. The chapel creates a sense of peace through a single space, using a gentle slope that evokes the feeling of attending a worship service on a low hill. The subdued light, gleaming through the long and narrow clerestory, embraces the entire chapel and imbues the static space with vitality.

WORK OF ART
BRUTAL ON THE OUTSIDE, DEEPLY GOTHIC, EARTHY AND PSYCHEDELIC ON THE INSIDE
It was the first church in Switzerland built with reinforced, raw concrete, some 25 years before the term "brutalism" was coined. It is an uncompromising feat of superlatives: the church tower rises 62 meters into the sky, and the austere architecture recalls industrial buildings. The exposed concrete church also broke new artistic ground with the huge glass paintings by Otto Staiger and Hans Stocker. At once ruthlessly stark and awe-inspiring in its monumentality, the church ranks among the most important and iconic works of modern architecture in Switzerland.
While the exterior sits firmly on the good side of the clean-cut monumentalism favored by the Duce, the interior is minimal, warm, simple, and deeply gothic. The exposed concrete barrel vault and its eight supporting columns even introduce a classical element. The clinker-tiled floor radiates a soothing, earthy warmth, while the modernist stained-glass windows by Hans Stocker and Otto Staiger bathe the church in almost psychedelic fractals of light on sunny days. And it is the plain wall behind the altar, adorned only by a gold mosaic cross, that stands out as one of St. Anthony’s most striking features.

STAINED GLASS WINDOWS
A STRUCTURE WITHOUT PLASTERS OR DECORATIVE SURFACES
The stained glass windows of Antoniuskirche are 4.8 meters long and 13.8 meters wide. They interrupt the continuity of the concrete and create evocative light effects inside the building. There are 11 historiated stained glass windows, created by artists Hans Stocker and Otto Staiger between 1926 and 1930. Each window represents a chapter of Saint Anthony’s life or an iconographically important character from the Gospel.
Inside the building, the main altar, along with the two side altars, is coated with dark red or brown Klinker, as is the choir area. Different areas have been decorated with brass bas-reliefs: above the main altar, on the pulpit, and on the inner concrete walls.


ARCHITECTURAL HARMONY
THE INTERIOR
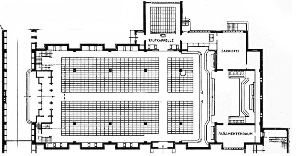
The church was built on a rectangular floor plan measuring 60 x 22 meters, rising to a ceiling height of 22 meters. A special feature is the urban arrangement, where the longitudinal nave is inserted between multi-story houses on both sides. The church is highlighted by its slightly higher ridge, striking portals, and a 62-meter-high tower. The tower, with a 12-meter-high belfry, is divided into four sections and crowned with a distinctive concrete cross. On the landing between the main body and the belfry, there is a narrow viewing gallery around the tower on three sides. The church tower is offset from the nave and is located closer to the street, making the tower dominate the road over longer distances. Inside, the barrel vault of the main nave and the flat coffered ceilings of the lateral naves are supported by eight slender concrete piers. Above the confessional chairs are the intensely luminous windows, divided by three vertical and three horizontal concrete struts. The five pairs of windows (13.7 meters high and 4.8 meters wide) extend all the way up to the ceiling. These windows are essential to the character of the interior. The organ gallery, also made of exposed concrete, protrudes into the room, almost reaching the first pier. Karl Moser also played a decisive role in the interior design.

FIELD VISIT - October 19, 23
PERSONAL INSIGHTS
This building, an architectural masterpiece, once again emphasizes the importance of materials in architecture. The simple use of concrete creates an extraordinary interaction for its users, both structurally, spatially, and spiritually. While the simplicity, quietness, and rawness of the concrete highlight the superior technique in the construction of the building, the complex moods it evokes—ranging from coldness to loneliness—create deep connections with its users, both physically and mentally, in the context of the building’s primary function as a church.
The magnificence of the structure, on the one hand, prompts people to reconsider their own scale in relation to the world and allows them to establish entirely new spiritual connections with the divine emotionality that spontaneously arises within this vast volume.






RESOURCES
https://www.idealwork.com/antoniuskirche-and-raw-concrete-basilea-innovative-religious-building/
https://heartbrut.com/compendium/stanthonyschurch/
https://newchurcharchitecture.wordpress.com/2014/03/02/karl-moser/
https://www.swissinfo.ch/eng/culture/concrete--the-building-material-of-the-20th-century/47310640
https://architizer.com/blog/inspiration/collections/concrete-church/
https://www.sam-basel.org/en/node/539
https://www.architekturbibliothek.ch/bauwerk/antoniuskirche/
https://architekturbasel.ch/antoniuskirche/
https://www.e-pics.ethz.ch/index/ETHBIB.Bildarchiv/ETHBIB.Bildarchiv_889092.html
Copyright © all rights reserved by Engin Tulay. Unauthorized use is a violation of applicable laws.